Planning a new home and need inspiration? This stylish four-bedroom modular home we’ve recently completed is full of ideas to spark your creativity.
Our clients wanted to build a new home that would fit in with the relaxed coastal atmosphere in Clifton Springs, Victoria. They chose to customise our Portsea 16 floor plan, tweaking the layout and adding a variety of upgrades to create their dream seaside home.
On the exterior, the dark cladding and warm timber contrast beautifully with the coastal landscape. Inside, the timeless interior design elevates the home to a new level while also giving that nostalgic holiday feeling.
Read on to see the highlights and collect fresh design ideas for your own dream modular home.
Light and airy living

In a family home like this, creating an inviting environment is a high priority. The Mink Grey Oak flooring creates a seamless feeling throughout the space, leading the eye from the kitchen out to the ocean. The timber gives the room warmth, balanced by the crisp white walls and high gable ceilings.
A striking feature wall of Hardie™ Groove Lining frames the fireplace in the colour Monument. The Caesarstone hearth floats below, extending further to tie in with the rest of the room. Chosen by the client, these upgraded features showcase how investing in quality finishes can lift the entire space.

The open-concept living allows for easy entertaining, with the dining, lounge, and kitchen blending seamlessly to give a feeling of ease and relaxation. The home is designed to be both stylish and highly functional, ensuring a comfortable and easy-going lifestyle.
Upgraded kitchen with beach tones
The kitchen is the heart and soul of this home, with an open-plan concept flowing effortlessly into the dining and living rooms. In the colour, Cloudburst, the Caesarstone benchtop complements the minimal aesthetic, offset by the Paloma Moss Green backsplash tiles.

To create clean lines, the premium Electrolux rangehood is seamlessly integrated into the overhead cabinets. For ultimate convenience, the Westinghouse oven and stovetop are located in the centre, opposite the sink. Additionally, the walk-in pantry provides an out-of-sight place for appliances and storage.

This design makes cooking and cleaning efficient and effortless, making entertaining and daily life a breeze.
Bathrooms with a touch of luxury
Continuing the seaside theme, the bathroom has a calming atmosphere. The client chose to increase the tile height, with a full feature wall of moss-green tiles. This is a luxurious touch, hinting at the cool tones of the ocean. With the warm timber finish cabinetry and basket pendant light, this space feels like a relaxing spa.

In the ensuite, the same green tiles and timber finish cabinetry were used to create a sense of continuity. The double vanity also adds sophistication and convenience.

Relaxing bedroom spaces
This spacious house comprises four bedrooms with high ceilings and a neutral colour scheme. Each room boasts large windows that usher in an abundance of natural light, resulting in a cheerful and inviting ambience. The generous floor area, combined with these features, offers the perfect retreat to relax and unwind in comfort.
If you’re looking for a more compact Portsea design, the 3-bedroom Portsea 14 or the 2-bedroom Portsea 12 may be more suitable for your family or lifestyle.
Modern exterior with black cladding
.jpg)
Framed by lush surroundings, the exterior of this gable-style home creates a stunning first impression. The client chose Weathertex Weathergroove Woodsman 150mm Cladding in Monument for a bold and modern look. To increase visual appeal, they also chose to incorporate Blackbutt Timber on the internal gable feature on the front façade.

Looking for tips to create your dream exterior? Read our top design tips in our recent article.
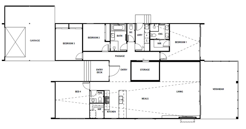
A personalised Portsea layout
The floor plan of this home was based on our Portsea 16, however, the client requested a few customisations to better suit their lifestyle and tastes.
The most notable change was adding a garage. This allows the homeowners to come and go with ease, provides additional storage space, and hides vehicles for enhanced curb appeal.
Our clients also chose to include popular optional upgrades, such as the large decking area and gabled pergola at the rear of the home. This area is perfect for outdoor entertaining and also for taking in the beautiful ocean views.

Along with a few modifications to the floor plan, the client opted for several finish and fixture upgrades. Together, these make the home feel high-end, elegant, and cohesive.

The Clifton Springs Project Floorplan
Modular homes Australia
If you’re ready to start your new modular home project, we’re here to help. Talk to our experienced team or visit our display homes to see what can be achieved with an Tachos House design.
