
Are you looking for a modern and spacious smaller home or holiday retreat? Modular homes offer plenty of stylish and affordable options – and the Beaumauris and Suburban are two of the best.
Both feature striking exteriors and floorplans that make clever use of space. In addition, the open-plan living areas include plenty of windows and an optional deck to make the most of the surrounding views.
There’s plenty to like about both the Beaumauris and the Suburban – so how do you decide which is the best small modular home for you?
In this article we’ll compare the two designs, discussing their features and benefits to help you decide which is the best fit for your needs.
The Beaumauris Modular Home Design

This beautifully appointed two-bedroom home packs plenty into its compact size. The 5.1m frontage (excluding the optional deck) makes it suitable for narrow blocks in coastal or urban locations. The Cubehaus façade and Colorbond cladding add a modern feel to the design and the addition of the optional deck makes for a warm and welcoming entrance.
Spacious Living in a Compact Space

A standout feature is the 2.7m ceilings which are a standard inclusion throughout. This adds a sense of space and light which makes a huge difference to the look and feel of a home of this size. The living area features large windows to let the views in, a single-wall kitchen to maximise the floor space and sliding door access to the optional 1.8m deck.
The bedrooms are situated together at one end of the house and both include built-in robes. Bedroom 1 also has sliding door access to a second private optional deck, providing a lovely place to watch the sunset or enjoy your morning cuppa.
The Beaumauris offers great value for first home buyers, downsizers, and anyone looking for a stylish and spacious smaller holiday home. For the base price of this design please download our current pricing list for the most up to date information.
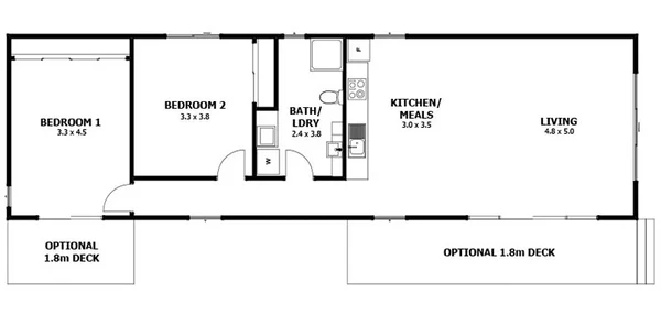
The Suburban Modular Home Design
With its beautiful design and affordable price point, it’s easy to see why the Suburban is one of our most popular designs. As seen in our Marysville project and at our Stratford display centre, the design is perfectly suited to rural settings, beach locations and blocks with a view.
Small Design with Big Features

The single skillion façade is a real highlight, bringing in plenty of natural light and adding a sense of space throughout. The raked ceilings and highlight windows further add to the effect, giving the open plan living area a wonderfully relaxed feel. The kitchen is a single wall design, cleverly situated along the rear wall and includes splashback windows so you can even take in the views as you wash up the dishes.
The large optional front deck is another great feature, running the length of the house with sliding door access from the living area and both bedrooms. The two bedrooms are located at either end of the house for privacy, and include built-in robes and highlight windows which add light and space.
The Suburban offers the perfect mix of value and luxury for those looking to enter the market, and for those who are ready to build their dream rural or coastal retreat. For the base price of this design please download our current pricing list for the most up to date information.
What’s the Verdict: Beaumauris or Suburban?
With both smaller homes offering style and value in spades, it’s not an easy decision!
If you’re building in an urban location on smaller block, the Beaumauris could be an ideal fit. While it may be small in size, the 2.7m ceilings give the design a real sense of space throughout.
For those looking to build a smaller residence or holiday home that captures the views, the Suburban is a great choice. The abundance of windows let in plenty of light and optional decking is the perfect place to enjoy the great outdoors over a relaxing meal or drink.
Choosing the right design can be tough. Be guided by your lifestyle, priorities, budget and your instincts. If you’re still not sure, it can be helpful to chat to an expert on our team. We’re always happy to offer advice based on our experience and on your own specific requirements.
Over to You
Which do you prefer – the Beaumaris or Suburban? We’d love you to share your thoughts about the designs by posting a comment below.
And if you’d like advice specific to your project, please get in touch with our friendly team!