Back to News and Insights
Article

5 Things We Love About The Tambo Modular Design

Modular designs

July 20, 2019

Written by
Laurie Raikes

Tambo front view

So, you’ve decided to build a new home… now comes the challenge of finding the perfect design! Once you’ve ticked the important boxes (house size, number of bedrooms and bathrooms, etc.) you may still be left with an overwhelming number of choices. But when you can identify the design that has the features that will enhance your lifestyle and enjoyment of your new home, you are well on your way to finding the perfect fit.

To help you find your ideal home faster, we’ve put together a series of articles sharing the five things we love best about each of our modular designs – and the focus today is on the Tambo. The modern design, smart layout and thoughtful inclusions of the Tambo design make it a popular choice for couples looking for a home that will grow with them, and families in need of a functional and stylish space. It’s also a great fit for retirees looking for a floor plan that is spacious enough to host family gatherings and has plenty of room for the kids and grandkids to stay.

So, read on to discover the highlights of the Tambo!

1. Bring the Outside In

Tambo

The optional front decking creates a warm and inviting feel to the home, while also providing a nice place to sit and enjoy the sunshine and surrounds. However, with the addition of optional bi-fold doors opening out from the living zone, it gets even better. The ability to merge the outdoor and indoor spaces is a wonderful feature that makes both relaxing with a quiet meal or entertaining friends extra special, whatever the occasion.

2. Bold Modern Design

Tambo living area, dining

The sleek lines of the Tambo combine perfectly with the cubehaus façade to create a stylish modern look with plenty of street appeal. The cubehaus façade also allows for 9ft ceilings throughout the home, which adds a sense of space, light and luxury to every room.

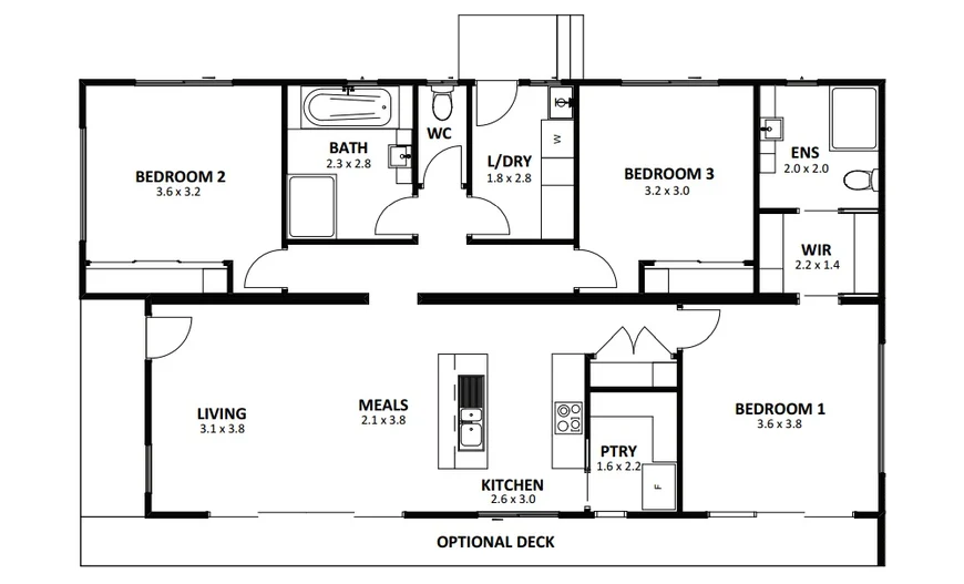
3. Compact Floorplan That Has It All

Tambo bedroom

The Tambo may be one of our smaller three-bedroom homes, but the well-designed floorplan includes all the features you’d expect in a modern home. The three bedrooms are all evenly spaced to provide privacy and the main bathroom includes a bath and separate toilet for convenience. Bedroom 1 features an ensuite and walk-in robe and includes sliding door access to the optional front decking. The addition of a separate laundry is also a plus, especially for families with a never-ending supply of washing.

4. Walk-in Pantry

Tambo_floorplan

Whether you’re a budding chef or in charge of feeding the family on a daily basis, you’re bound to love the inclusion of the walk-in pantry. The clever design includes plenty of shelf space, as well as room for your fridge which keeps it close at hand but out of sight.

5. Size Upgrade

If you’re looking for a home with just a little more room, the Tambo 15 includes all the features of the Tambo plus more. The Tambo 15 boasts an extra 33m2 of floorspace, made up of a fourth bedroom/study and extra-large living zone.

Simple, Stylish, Modern Living

If you’re looking for an affordable home that doesn’t skimp on style or features, the Tambo is a great option. The smart floor plan packs plenty in so you’ll enjoy all the everyday modern luxuries you’d expect to find without a hefty price tag. The ability to open the living zone up to the outside decking further extends the space, adding a real touch of class and style in the process. The striking modern exterior looks great in coastal, rural and urban environments, especially those where you can enjoy the view from the comfort of your front deck!

Over to You

Do you have a question about the Tambo design? We’d love to hear from you – simply post a comment below or get in touch on 03 5145 7110.

 

New Call-to-action

Ready to talk about your own project?

Get expert advice from one of our consultants to help you find your ideal home

Enter search term below